9056:土地 ふじみ野市福岡中央2丁目 土地
| 価格 | 3,930万円 |
|---|---|
| 所在地 | ふじみ野市福岡中央2丁目15-9 |
| 交通 | 東武東上線 上福岡駅 徒歩12分 東武東上線 ふじみ野駅 徒歩20分 |
| 土地面積 | 104.07m²(31.48坪) |
| 私道面積 | - |
| 坪単価 | 124.83万円 |
| 学区 | 小学校区:福岡小学校 660m 中学校区:福岡中学校 320m |
| 建ぺい率 | 60% |
|---|---|
| 容積率 | 200% |
| 地目 | 宅地 |
| 用途地域 | 近隣商業地域 |
| 現況 | 更地 |
| 土地権利 | 所有権 |
| 取引態様 | 仲介 |
| 引渡時期 | 相談 |
| セットバック | |
|---|---|
| 接道 | 北 6.8m(幅員) 公道 南東 4m(幅員) 公道 |
| 諸費用 | |
| 国土法届出 | 不要 |
| 都市計画 | 市街化区域 |
| 他法条例 | |
| 建築条件 | 条件付 |
特色
両面道路、公営水道、公共本下水、都市ガス、参考プラン有り、保育園(1キロ圏内)、コンビニ(徒歩10分以内)
コメント
土地です。
建築条件付き土地です。
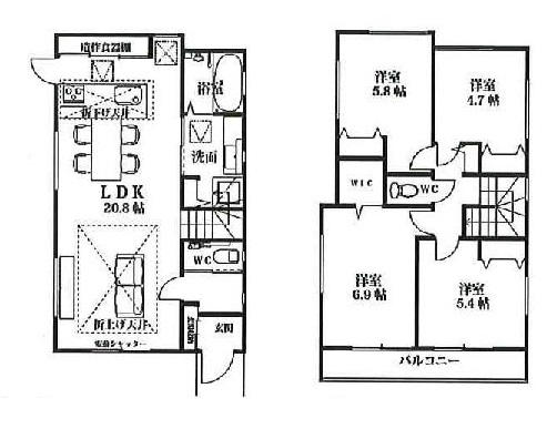
参考プランあります。
周辺施設
新田保育園まで約290m
香取幼稚園まで約650m
Big-A上福岡松山店まで約470m
ローソンふじみ野松山店まで約630m
周辺地図
位置情報に関するご注意:現在位置情報は精査中の為、正確ではない場合があります。あくまで参考程度の情報となります。











