ふじみ野市桜ケ丘3丁目 新築戸建て

価格 3,980万円

1/10

物件番号「9076」をお伝えください。

電話でお問合せ LINEでお問合せ

物件情報

360VR
物件コード 9076
種目 新築戸建て
価格 3,980万円
住所
ふじみ野市桜ケ丘3丁目22-60 地図
駅名 ふじみ野駅
徒歩 25分
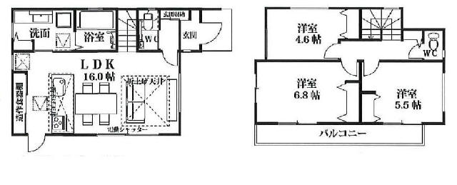
間取 3LDK
土地面積 100.1m²
建物構造 木造
建物面積 79.69m²
西暦築年月
用途地域 第一種低層住居専用地域
建ぺい率 50%
容積率 80%
地目 宅地
土地権利 所有権
駐車場 並列2台分有り(車種による)
学区 西原小学校 700m/大井西中学校 1,500m
現況 未完成
引渡時期 2026/07 中旬
特色 【戸建て】2階建て、駐車場、角地、公営水道、公共本下水、都市ガス、ペアガラス、トイレ2ヵ所、浴室乾燥機、食洗乾燥機、Low-Eガラス、システムキッチン、浴室1坪以上、サニタリー1坪以上、保育園(1キロ圏内)、コンビニ(徒歩10分以内)
コメント 『仲介手数料無料物件!』キャンペーン対象物件
新築戸建てです。
設計住宅性能評価書取得住宅4項目において“最高等級”を取得しています。
☆耐震等級3(構造躯体の倒壊等防止)
☆耐震等級3(構造躯体の損傷防止)
☆維持管理対策等級3
☆劣化対策等級3
省エネ基準適合住宅
〇断熱等性能等級4
〇一次エネルギー消費量等級4

【設備・仕様】
・食器洗浄器
・浄水器付フルフラットキッチン
・全扉オートクローズ機能
・節水型ローシルエットトイレ
・外壁15~16㎜サイディング
・Low-Eガラス採用
・大型洗面化粧台
・玄関ドア スマートキー対応
・大型造作カップボード
・造作シューズクローク
・etc...

周辺環境
風の里保育園まで約830m
文京学院大学ふじみ野幼稚園まで約1,100m
コモディイイダ大井店まで約550m
ローソンふじみ野高校前店まで約370m
取引態様 仲介
取引条件有効期限 2026年03月14日

更新情報

情報更新日 2026年03月07日
次回更新予定日 2026年03月08日

ローンシミュレーション

物件価格 3,980万円
頭金 万円
金利
借入期間
再計算
月々の返済額
年間の返済額
返済総額
利息合計
※ 毎回の返済額が開始から終了まで均等となる「元利均等返済」で算出しています。
※ 金利は期間中固定となる固定金利を採用しています。
※ 月々の返済額は小数点以下を繰り上げしております
※ シミュレーションでの結果は、あくまでも目安で、概算になります。実際にローン契約をする際は、詳細を金融機関にご確認ください。
※ 実際のローン契約時には諸費用・税金(手数料や印紙税、保証料など)が別途かかりますので、契約の際にご確認ください。

物件番号「9076」をお伝えください。

電話でお問合せ LINEでお問合せ
電話 メール LINE
簡易お問合せ

お名前


メールアドレス


問合せ内容


OK